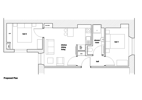
Flat Renovation, Aberdeen


This project involved reconfiguring the layout of the existing 1 bedroom flat to provide a second bedroom.


We were involved with this project from inception to completion, including project management on site and the specification of all fixtures, fittings and furnishings.